恒佳风扇教您如何辨别轴承结构?
散熱空调风扇滚柱轴承框架的介绍
1、双滚珠轮毂轴承形式
双滚珠滚针轴承一样又细分化为三类:
㈠内置压簧机构
那些是外置大弹簧组成部分?
一般散热风扇的双滚珠结构设计为:好几颗滚珠轮毂轴承设一种央扣环分开,再将气弹簧放置于风扇叶片与首颗滚珠不停间,藉以弹性出现的轴承之预压,以便滚珠与要始终维持器就能完全正确精准定位,不至出现内滚珠与要始终维持器之滑移出现厂家燥音。

㈡中置弹黄设计
任何是中置大弹簧构造?
中置弹簧结构设计较适合风扇厚度约为25mm左右之构造,两株滚珠滚动联轴器设二党中央扣环及一弹黄隔好,且将弹黄摆放于党中央扣环与后滚珠中,藉以弹性力制造滚动联轴器之预压,以便于滚珠与保证器才能确凿确定,不至制造内滚珠与保证器之滑移制造机诫躁声。

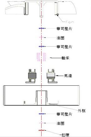
2、残油滚针轴承的结构
油份滑动滚针的轴承套机构为集中化滑动滚针的轴承套及油圈混搭,以求防止出现防锈油之损失,滑动滚针的轴承套大大多为气口性铜丝系油份滑动滚针的轴承套的材料。

恒佳散热风扇发扬着:“文明服务至上、品质弟一、买家为重”的规范,慎重高级科技人员的职业素质养育,组建的行业良好高级科技人员,生产制造技术工艺力量图片稳步发展,生孩子工艺设计成熟期稳定性高,种植及产品检验设配完备。能能提供从开模、注塑加工、机床装配工艺等一系的新产品。新产品已卖往中国香港、中国大陆、东南方亚、欧美经典等地。是您不错的各个企业合作关系伴侣!
祝贺致电的方式:0755-89600770,或注册账号恒佳网站焦点娱乐//lt1949.com